Top.Mail.Ru
Проект каркасного дома КД-140 | OLLATALO

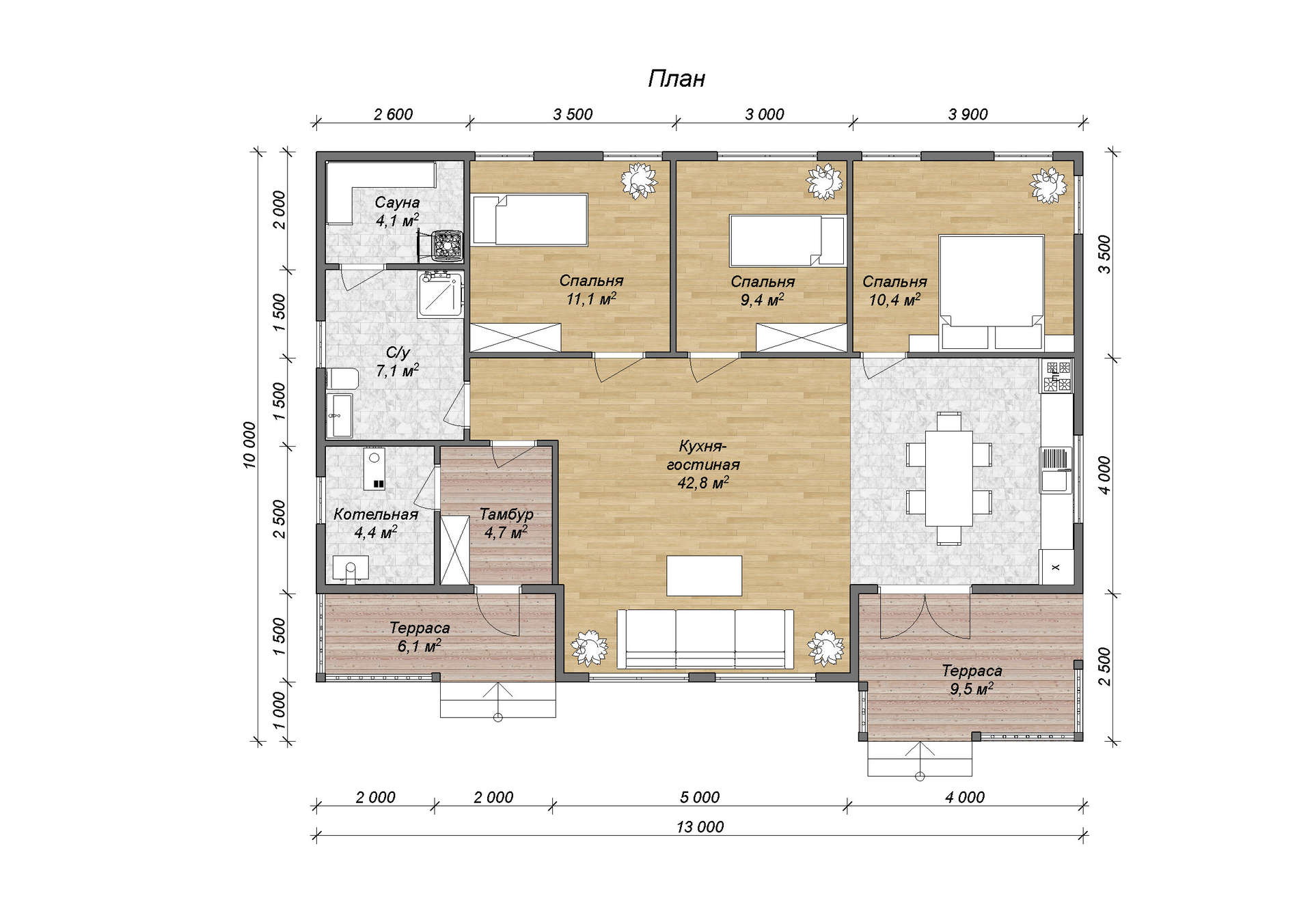
Проект КД-140

Современные технологии строительства, безопасная сделка через эскроу-счет, построим дом за 45 дней

Отделка

Фундамент

Гарантия 7 лет

Ипотека с эскроу‑счётом

Маткапитал

Кредит до 30 лет

ВТБ
Сбербанк
РФ
Дом РФ

Планировки вашего будущего дома

Общая площадь

108 м

Этажность

1

Размер

9х12 м

Гарантия, лет

7 лет

Спальни

3

С/У

1

Технологии строительства

Финские технологии строительства

Жилая площадь

97 м

Хочу доработать планировку

Хочу доработать планировку

Сравнение комплектаций

Сравнение характеристик доступных комплектаций
Характеристика Тёплый контур Под ключ (с отделкой) Под ключ (с инженерными коммуникациями)
Половые лаги и межэтажное перекрытие Строганая завальцованная доска камерной сушки 45×145 (h) мм, на ребро, с шагом не более 390 мм Строганая завальцованная доска камерной сушки 45×145 (h) мм, на ребро, с шагом не более 390 мм Строганая завальцованная доска камерной сушки 45×145 (h) мм, на ребро, с шагом не более 390 мм
Силовой каркас

Стены: строганая завальцованная доска 45×145 мм камерной сушки

Половые лаги и межэтажное перекрытие, стропила: строганая завальцованная доска 45×145 мм камерной сушки

Перегородки: строганая завальцованная доска 45×95 мм камерной сушки

Стены: строганая завальцованная доска 45×145 мм камерной сушки

Половые лаги и межэтажное перекрытие: строганая завальцованная доска 45×145 мм камерной сушки

Перегородки: строганая завальцованная доска 45×95 мм камерной сушки

Стены: строганая завальцованная доска 45×145 мм камерной сушки

Половые лаги и межэтажное перекрытие: строганая завальцованная доска 45×145 мм камерной сушки

Перегородки: строганая завальцованная доска 45×95 мм камерной сушки

Пол Фанера 21 мм, ЦСП 9 мм в два слоя Фанера 21 мм, ЦСП 9 мм в два слоя Фанера 21 мм, ЦСП 9 мм в два слоя
Потолки Высота каждого этажа – 2,50 м Второй свет (при конструктивной возможности) Высота каждого этажа – 2,50 м Второй свет (при конструктивной возможности) Высота каждого этажа – 2,50 м Второй свет (при конструктивной возможности)
Утеплитель (стены/кровля)

Пол: минеральный рулонный утеплитель KNAUF (аналоги) толщиной 150 мм

Наружные стены: плитное утепление Rockwool (аналоги) толщиной 150 мм

Перегородки: плитное утепление Rockwool (аналоги) толщиной 100 мм

Потолок и межэтажное перекрытие: минеральный рулонный утеплитель KNAUF (аналоги) толщиной 150 мм

Утепление по стропилам: плитное утепление Rockwool (аналоги) толщиной 150 мм

Пол: минеральный рулонный утеплитель KNAUF (аналоги) толщиной 150 мм

Наружные стены: плитное утепление Rockwool (аналоги) толщиной 150 мм

Перегородки: плитное утепление Rockwool (аналоги) толщиной 100 мм

Потолок и межэтажное перекрытие: минеральный рулонный утеплитель KNAUF (аналоги) толщиной 150 мм

Утепление по стропилам: плитное утепление Rockwool (аналоги) толщиной 150 мм

Пол: Минеральный рулонный утеплитель KNAUF (аналоги) толщиной 150 мм

Наружные стены: Плитное утепление Rockwool (аналоги) толщиной 150 мм

Перегородки: Плитное утепление Rockwool (аналоги) толщиной 100 мм

Потолок и межэтажное перекрытие: Минеральный рулонный утеплитель KNAUF (аналоги) толщиной 150 мм

Утепление по стропилам: Плитное утепление Rockwool (аналоги) толщиной 150 мм

Ветрозащитные и пароизоляционные мембраны

Пароизоляционная мембрана: «Ондутис»

Ветро-влагозащитная мембрана: «Ондутис»

Скотч: DELTA-MULTI-BAND и DELTA INSIDE BAND

Закладные из пароизоляционной мембраны: монтируются в местах примыкания перегородок с холодным контуром (пол, потолок, стены)

Изоляционные оконные ленты

Пароизоляционная мембрана: «Ондутис»

Ветро-влагозащитная мембрана: «Ондутис»

Скотч: DELTA-MULTI-BAND и DELTA INSIDE BAND

Закладные из пароизоляционной мембраны: монтируются в местах примыкания перегородок с холодным контуром (пол, потолок, стены)

Изоляционные оконные ленты

Пароизоляционная мембрана: «Ондутис»

Ветро-влагозащитная мембрана: «Ондутис»

Скотч: DELTA-MULTI-BAND и DELTA INSIDE BAND

Закладные из пароизоляционной мембраны: монтируются в местах примыкания перегородок с холодным контуром (пол, потолок, стены)

Изоляционные оконные ленты

Кровля

Металлочерепица: Grand Line 0,45 мм Classic

Свесы кровли: ширина одного свеса составляет не менее 500 мм

Подшивка свесов: строганный планкен камерной сушки 20×96 мм

Металлочерепица: Grand Line 0,45 мм Classic

Свесы кровли: ширина одного свеса составляет не менее 500 мм

Строганный планкен камерной сушки: 20×96 мм

Металлочерепица: Grand Line 0,45 мм Classic

Свесы кровли: ширина одного свеса составляет не менее 500 мм

Строганный планкен камерной сушки: 20×96 мм

Окна ПВХ VEKA WHS (60 мм) двухкамерные с фурнитурой и отливами ПВХ VEKA WHS (60 мм) двухкамерные с фурнитурой и отливами ПВХ VEKA WHS (60 мм) двухкамерные с фурнитурой и отливами
Двери

Входная дверь: металлическая утепленная

Проёмы под межкомнатные двери

Входная дверь: металлическая утепленная

Проёмы под межкомнатные двери

Входная дверь: металлическая утепленная

Проёмы под межкомнатные двери

Вентиляция

Приточные клапаны КИВ 125: гостиная, спальни, газовая котельная (при наличии)

Вентиляционные грибы: котельная, СУ, зона кухни, гостиная, холл второго этажа (если дом 2-этажный)

Приточные клапаны КИВ 125: гостиная, спальни, газовая котельная (при наличии)

Вентиляционные грибы: котельная, су, зона кухни, гостиная, холл второго этажа (если дом 2 этажный)

Приточные клапаны КИВ 125: гостиная, спальни, газовая котельная (при наличии)

Вентиляционные грибы: котельная, су, зона кухни, гостиная, холл второго этажа (если дом 2 этажный)

Наружная отделка Имитация бруса камерной сушки 17х146 мм класс АВ Имитация бруса камерной сушки 17х146 мм класс АВ Имитация бруса камерной сушки 17х146 мм класс АВ
Внутренняя отделка (стены) - Вагонка хвойных пород камерной сушки 14х146 мм класс АВ Вагонка хвойных пород камерной сушки 14х146 мм класс АВ
Внутренняя отделка (потолок) - Вагонка хвойных пород камерной сушки 14х146 мм класс АВ Вагонка хвойных пород камерной сушки 14х146 мм класс АВ
Терраса, крыльцо

Пол: строганная завальцованная доска камерной сушки 45×145 мм хвойных пород, террасная доска (вельвет) камерной сушки 36×136 мм хвойных пород

Перила и ограждение: по периметру устанавливаются перила из строганной завальцованной доски камерной сушки 45×145 мм и ограждение из строганного завальцованного бруска камерной сушки 45×45 мм, вертикально / горизонтально

Столбы: из строганной доски 45×145 мм (135×145 мм)

Входные ступени: временные

Пол: строганная завальцованная доска камерной сушки 45×145 мм хвойных пород, террасная доска (вельвет) камерной сушки 36×136 мм хвойных пород

Перила и ограждение: по периметру устанавливаются перила из строганной завальцованной доски камерной сушки 45×145 мм и ограждение из строганного завальцованного бруска камерной сушки 45×45 мм, вертикально/горизонтально

Столбы: из строганной доски 45×145 мм (135×145 мм)

Входные ступени: временные

Пол: строганная завальцованная доска камерной сушки 45×145 мм хвойных пород, террасная доска (вельвет) камерной сушки 36×136 мм хвойных пород

Перила и ограждение: по периметру устанавливаются перила из строганной завальцованной доски камерной сушки 45×145 мм и ограждение из строганного завальцованного бруска камерной сушки 45×45 мм вертикально/горизонтально

Столбы: из строганной доски 45×145 мм (135×145 мм)

Входные ступени: временные

Прочее

Архитектурный и конструктивный проект

Аренда бытовки и туалета для проживания бригады

Архитектурный и конструктивный проект

Аренда бытовки и туалета для проживания бригады

Архитектурный и конструктивный проект

Аренда бытовки и туалета для проживания бригады

Инженерная коммуникация Наружные электрические сети, наружное водоснабжение, наружная канализация, внутренние электрические сети, отопление, водоснабжение и канализация внутри дома
Сроки от 21 дня От 40 дней От 50 дней

Тёплый контур

Половые лаги и межэтажное перекрытие
Строганая завальцованная доска камерной сушки 45×145 (h) мм, на ребро, с шагом не более 390 мм
Силовой каркас

Стены: строганая завальцованная доска 45×145 мм камерной сушки

Половые лаги и межэтажное перекрытие, стропила: строганая завальцованная доска 45×145 мм камерной сушки

Перегородки: строганая завальцованная доска 45×95 мм камерной сушки

Пол
Фанера 21 мм, ЦСП 9 мм в два слоя
Потолки
Высота каждого этажа – 2,50 м Второй свет (при конструктивной возможности)
Утеплитель (стены/кровля)

Пол: минеральный рулонный утеплитель KNAUF (аналоги) толщиной 150 мм

Наружные стены: плитное утепление Rockwool (аналоги) толщиной 150 мм

Перегородки: плитное утепление Rockwool (аналоги) толщиной 100 мм

Потолок и межэтажное перекрытие: минеральный рулонный утеплитель KNAUF (аналоги) толщиной 150 мм

Утепление по стропилам: плитное утепление Rockwool (аналоги) толщиной 150 мм

Ветрозащитные и пароизоляционные мембраны

Пароизоляционная мембрана: «Ондутис»

Ветро-влагозащитная мембрана: «Ондутис»

Скотч: DELTA-MULTI-BAND и DELTA INSIDE BAND

Закладные из пароизоляционной мембраны: монтируются в местах примыкания перегородок с холодным контуром (пол, потолок, стены)

Изоляционные оконные ленты

Кровля

Металлочерепица: Grand Line 0,45 мм Classic

Свесы кровли: ширина одного свеса составляет не менее 500 мм

Подшивка свесов: строганный планкен камерной сушки 20×96 мм

Окна
ПВХ VEKA WHS (60 мм) двухкамерные с фурнитурой и отливами
Двери

Входная дверь: металлическая утепленная

Проёмы под межкомнатные двери

Вентиляция

Приточные клапаны КИВ 125: гостиная, спальни, газовая котельная (при наличии)

Вентиляционные грибы: котельная, СУ, зона кухни, гостиная, холл второго этажа (если дом 2-этажный)

Наружная отделка
Имитация бруса камерной сушки 17х146 мм класс АВ
Внутренняя отделка (стены)
-
Внутренняя отделка (потолок)
-
Терраса, крыльцо

Пол: строганная завальцованная доска камерной сушки 45×145 мм хвойных пород, террасная доска (вельвет) камерной сушки 36×136 мм хвойных пород

Перила и ограждение: по периметру устанавливаются перила из строганной завальцованной доски камерной сушки 45×145 мм и ограждение из строганного завальцованного бруска камерной сушки 45×45 мм, вертикально / горизонтально

Столбы: из строганной доски 45×145 мм (135×145 мм)

Входные ступени: временные

Прочее

Архитектурный и конструктивный проект

Аренда бытовки и туалета для проживания бригады

Инженерная коммуникация
Сроки
от 21 дня

Под ключ (с отделкой)

Половые лаги и межэтажное перекрытие
Строганая завальцованная доска камерной сушки 45×145 (h) мм, на ребро, с шагом не более 390 мм
Силовой каркас

Стены: строганая завальцованная доска 45×145 мм камерной сушки

Половые лаги и межэтажное перекрытие: строганая завальцованная доска 45×145 мм камерной сушки

Перегородки: строганая завальцованная доска 45×95 мм камерной сушки

Пол
Фанера 21 мм, ЦСП 9 мм в два слоя
Потолки
Высота каждого этажа – 2,50 м Второй свет (при конструктивной возможности)
Утеплитель (стены/кровля)

Пол: минеральный рулонный утеплитель KNAUF (аналоги) толщиной 150 мм

Наружные стены: плитное утепление Rockwool (аналоги) толщиной 150 мм

Перегородки: плитное утепление Rockwool (аналоги) толщиной 100 мм

Потолок и межэтажное перекрытие: минеральный рулонный утеплитель KNAUF (аналоги) толщиной 150 мм

Утепление по стропилам: плитное утепление Rockwool (аналоги) толщиной 150 мм

Ветрозащитные и пароизоляционные мембраны

Пароизоляционная мембрана: «Ондутис»

Ветро-влагозащитная мембрана: «Ондутис»

Скотч: DELTA-MULTI-BAND и DELTA INSIDE BAND

Закладные из пароизоляционной мембраны: монтируются в местах примыкания перегородок с холодным контуром (пол, потолок, стены)

Изоляционные оконные ленты

Кровля

Металлочерепица: Grand Line 0,45 мм Classic

Свесы кровли: ширина одного свеса составляет не менее 500 мм

Строганный планкен камерной сушки: 20×96 мм

Окна
ПВХ VEKA WHS (60 мм) двухкамерные с фурнитурой и отливами
Двери

Входная дверь: металлическая утепленная

Проёмы под межкомнатные двери

Вентиляция

Приточные клапаны КИВ 125: гостиная, спальни, газовая котельная (при наличии)

Вентиляционные грибы: котельная, су, зона кухни, гостиная, холл второго этажа (если дом 2 этажный)

Наружная отделка
Имитация бруса камерной сушки 17х146 мм класс АВ
Внутренняя отделка (стены)
Вагонка хвойных пород камерной сушки 14х146 мм класс АВ
Внутренняя отделка (потолок)
Вагонка хвойных пород камерной сушки 14х146 мм класс АВ
Терраса, крыльцо

Пол: строганная завальцованная доска камерной сушки 45×145 мм хвойных пород, террасная доска (вельвет) камерной сушки 36×136 мм хвойных пород

Перила и ограждение: по периметру устанавливаются перила из строганной завальцованной доски камерной сушки 45×145 мм и ограждение из строганного завальцованного бруска камерной сушки 45×45 мм, вертикально/горизонтально

Столбы: из строганной доски 45×145 мм (135×145 мм)

Входные ступени: временные

Прочее

Архитектурный и конструктивный проект

Аренда бытовки и туалета для проживания бригады

Инженерная коммуникация
Сроки
От 40 дней

Под ключ (с инженерными коммуникациями)

Половые лаги и межэтажное перекрытие
Строганая завальцованная доска камерной сушки 45×145 (h) мм, на ребро, с шагом не более 390 мм
Силовой каркас

Стены: строганая завальцованная доска 45×145 мм камерной сушки

Половые лаги и межэтажное перекрытие: строганая завальцованная доска 45×145 мм камерной сушки

Перегородки: строганая завальцованная доска 45×95 мм камерной сушки

Пол
Фанера 21 мм, ЦСП 9 мм в два слоя
Потолки
Высота каждого этажа – 2,50 м Второй свет (при конструктивной возможности)
Утеплитель (стены/кровля)

Пол: Минеральный рулонный утеплитель KNAUF (аналоги) толщиной 150 мм

Наружные стены: Плитное утепление Rockwool (аналоги) толщиной 150 мм

Перегородки: Плитное утепление Rockwool (аналоги) толщиной 100 мм

Потолок и межэтажное перекрытие: Минеральный рулонный утеплитель KNAUF (аналоги) толщиной 150 мм

Утепление по стропилам: Плитное утепление Rockwool (аналоги) толщиной 150 мм

Ветрозащитные и пароизоляционные мембраны

Пароизоляционная мембрана: «Ондутис»

Ветро-влагозащитная мембрана: «Ондутис»

Скотч: DELTA-MULTI-BAND и DELTA INSIDE BAND

Закладные из пароизоляционной мембраны: монтируются в местах примыкания перегородок с холодным контуром (пол, потолок, стены)

Изоляционные оконные ленты

Кровля

Металлочерепица: Grand Line 0,45 мм Classic

Свесы кровли: ширина одного свеса составляет не менее 500 мм

Строганный планкен камерной сушки: 20×96 мм

Окна
ПВХ VEKA WHS (60 мм) двухкамерные с фурнитурой и отливами
Двери

Входная дверь: металлическая утепленная

Проёмы под межкомнатные двери

Вентиляция

Приточные клапаны КИВ 125: гостиная, спальни, газовая котельная (при наличии)

Вентиляционные грибы: котельная, су, зона кухни, гостиная, холл второго этажа (если дом 2 этажный)

Наружная отделка
Имитация бруса камерной сушки 17х146 мм класс АВ
Внутренняя отделка (стены)
Вагонка хвойных пород камерной сушки 14х146 мм класс АВ
Внутренняя отделка (потолок)
Вагонка хвойных пород камерной сушки 14х146 мм класс АВ
Терраса, крыльцо

Пол: строганная завальцованная доска камерной сушки 45×145 мм хвойных пород, террасная доска (вельвет) камерной сушки 36×136 мм хвойных пород

Перила и ограждение: по периметру устанавливаются перила из строганной завальцованной доски камерной сушки 45×145 мм и ограждение из строганного завальцованного бруска камерной сушки 45×45 мм вертикально/горизонтально

Столбы: из строганной доски 45×145 мм (135×145 мм)

Входные ступени: временные

Прочее

Архитектурный и конструктивный проект

Аренда бытовки и туалета для проживания бригады

Инженерная коммуникация
Наружные электрические сети, наружное водоснабжение, наружная канализация, внутренние электрические сети, отопление, водоснабжение и канализация внутри дома
Сроки
От 50 дней

Не уверены в выборе?

Мини-дом Ollatalo
Получите консультацию

Варианты фундамента

Винтовые сваи

Винтовые сваи

Размеры сваи: 108 мм, длина 3 000 мм. Идеальны для участков с перепадом высот и слабым грунтом. Монтаж всего за 1 день, можно строить сразу без ожидания усадки

Монолитная плита

Монолитная плита

Размеры сваи: 200 мм. Надежное решение: равномерно распределяет нагрузку, исключая любые перекосы. Сразу служит готовым черновым полом первого этажа

Наши ключевые преимущества

11+ лет

Большой в загородном строительстве

Срок от 30 дней

Быстрое возведение дома вашей мечты

Карельская древесина

Экологичный материал высшего сорта

Свои бригады

Опытные строители в штате компании

Фиксированный договор

Цена не изменится в процессе стройки

Гарантия 7 лет

Уверенность в качестве наших работ

Преимущества технологии каркасного дома

Экономия до 30% на отоплении

Высокая энергоэффективность

Дом под ключ за 3 месяца

Быстрое строительство без усадки

Экологичные материалы

Здоровый микроклимат в доме

Устойчив к землетрясениям

Прочная и легкая конструкция

Контроль качества Проверка аэродверью

Мы не просто строим дома, мы создаем герметичные и энергоэффективные пространства. Каждый наш проект проходит обязательную проверку на герметичность

Проверка герметичности дома аэродверью

Экономия на отоплении

Герметичный дом теряет меньше тепла, что значительно сокращает ваши счета за отопление зимой и кондиционирование летом

Комфортный микроклимат

Отсутствие сквозняков и стабильная температура создают здоровый и комфортный микроклимат в любое время года

Долговечность конструкций

Правильная герметичность предотвращает попадание влаги в утеплитель и конструкции дома, защищая их от плесени и разрушения

Читать

Портфолио реализованных проектов

Мы уже построили 200+ домов

Посмотрите на карту наших реализованных проектов

Проект в подарок

Проект в подарок

При заключении договора на строительство любого дома до конца месяца вы получаете проект вашего дома абсолютно бесплатно

Оставить заявку

Поэтапная и прозрачная оплата

Вы платите за конкретные выполненные этапы. Никаких скрытых платежей — все суммы фиксируются в договоре

20%

Аванс

Подписание договора

50%

Домокомплект

Доставка материалов на участок

20%

Силовой каркас

Возведение силового каркаса

10%

Финал

Завершение строительства. Подписание акта приемки

Этапы строительства

  1. 1

    Проектирование

    Согласование проекта, подготовка документации, адаптация под ваш участок

  2. 2

    Фундамент

    Закладка фундамента выбранного типа (свайный, плитный, ленточный)

  3. 3

    Сборка каркаса

    Возведение стен, перекрытий и стропильной системы из качественной древесины

  4. 4

    Кровля и окна

    Монтаж кровельного покрытия, установка окон и входной двери

  5. 5

    Отделка

    Обшивка фасада, утепление, работы по внутренней отделке

  6. 6

    Сдача объекта

    Финальная проверка, уборка территории и передача ключей заказчику

Отзывы наших клиентов

Хотите увидеть дом до заказа?

Приезжайте на нашу стройку или в уже построенный дом! Заполните форму, и мы свяжемся с вами для согласования удобной даты

Записаться на экскурсию

О нашей компании

С 2014 года

мы строим современные каркасные дома. За это время мы реализовали более сотни проектов различной сложности, от уютных дачных домиков до просторных коттеджей для постоянного проживания

Наша миссия —

делать качественное и доступное жильё реальностью для каждой семьи, сочетая проверенные временем технологии с инновационными решениями

Производство каркасных домов

150+

домов построено

365 дней

строим круглогодично

8

строительных бригад

11+

лет на рынке

Мы строим дома так, как строили бы для себя. За 11 лет мы отточили технологии до идеала и собрали команду настоящих мастеров. Никаких случайных рабочих и дешевых материалов. Только проверенные бригады, качественный сухой лес и честное отношение к срокам. Результат — теплый и надежный дом без "сюрпризов"

Часто задаваемые вопросы

Для долговечности здания мы используем исключительно доску камерной сушки из плотной карельской сосны (500–550 кг/м³). Северная древесина обладает повышенной прочностью и устойчивостью к влаге. В отличие от материалов естественной влажности, такой каркас не деформируется и не дает усадки, что позволяет приступать к отделке сразу после завершения сборки.

Проект КД-140

Скидка от 700 000 рублей при оплате до 20.03
(*Не действует на ипотеку)